You can start your quest for a more expansive apartment while trying to simultaneously dispose of your “out-grown” home. OR perhaps locate two or more smaller apartments whose compatible layouts lend themselves to consolidation into a single, grand home - and bonus points if you already own one of them!
Even if you aren’t specifically seeking such an amalgamation, your search is likely to turn up large apartment options that were once separate homes. So here are the top things to keep in mind to ensure you aren’t creating a monster:
1.
The omnipresent risks of investing in a new building are alleviated by the familiarity with policies, financials, neighbors and staff, and you can likely forego some amount (not all) of due diligence and personal scrutiny from the board if you expand at your current address. You may even have established relationships with staff and tradespeople familiar with the building that can help you in your project.
2.
Some exceptional buildings that were designed with only petite layouts are already the home to many combination apartments and you can try to snag one of those, or DIY with the guidance of a building expert who will know what can and can’t (and just shouldn’t) be done.
30 5th Ave is an elegant and well-located building with many combined units and a long waitlist of buyers who want to scoop up either one of these larger homes or the opportunity to do it themselves.
This is a common combination of the H and J lines at 30 Fifth Avenue.
3.
Ensure that existing adjacent layouts lend themselves well to an intuitive floorplan. Sometimes a departure from the classics can be refreshing, and sometimes it's anything but. “Wet over Dry” restrictions can leave you with a sprawling apartment and a 1 bedroom sized kitchen that cannot be expanded, and buyers usually balk. On the other hand, if a decent kitchen exists, the spare can often become a massive master bathroom or laundry room, and who doesn’t love that?
11 Riverside Drive 8EW, Sold at $4.25M
Another example from 875 Park Ave
4.
When you go to sell, is the combination of 2 apartments going to be worth more than the two parts were worth? Even with the dramatic cost of gorgeous renovations, our recent full-floor penthouse listing on the Carrie Bradshaw block of Perry Street sold for $1,650,000 - and the half floors below were going for ~$795,000 each. The enjoyment factor was high, but the math didn’t really math in the end for these owners.
5.
It is extremely likely that an apartment originally built as a 2,000 square foot 3-bedroom will have less shares of the co-op and therefore lower maintenance than two apartments combined to create a 2,000 square foot co-op. Higher maintenance will affect the future value, so it’s important to factor that into the overall calculations.
6.
A formal approval to combine and renovate cannot be locked in until you close and your architect submits official plans + alteration agreement. Extra due diligence beyond the norm should be done to get the clearest idea that you will be permitted to do what you are hoping, and your expert broker can help you investigate. Boards are often receptive to reasonable well-planned proposals that will result in higher prices in the building, benefiting all shareholders.
Above is an example of a listing that is for 2 separate apartments for the buyer to combine. The board may have given a verbal blessing, and other informal assurances can be secured, but there is still a leap of faith involved for the buyer.
7.
If you have to first sell your small current apartment to buy another larger apartment, you will have to pay approximately 10% in closing costs to sell and potentially capital gains taxes + 3% closing costs to buy. It also takes time and coordination to swap perfectly, to not be paying for two homes at once (if the new co-op board will even allow you to close without selling). Purchasing another smaller apartment requires minimal closing costs based on a much more manageable amount that can be done on your own timeline.
8.
Sellers - it’s always a good idea to check with your direct neighbors before you list in case they need more space, which can save time and closing costs for everyone!
BONUS ROUND - THE CORRIDOR CONUNDRUM
Very often, to make a new layout click, a piece of the hallway can be acquired from the building and incorporated into the residence and it changes the game. You will negotiate a price with the board, and in theory they should be reasonable as it’s all upside for them. OR they will know that they have you between a rock and a hard place and really squeeze you. But it’s worth a shot for the extra square footage and a well-designed entrance at a reasonable price.
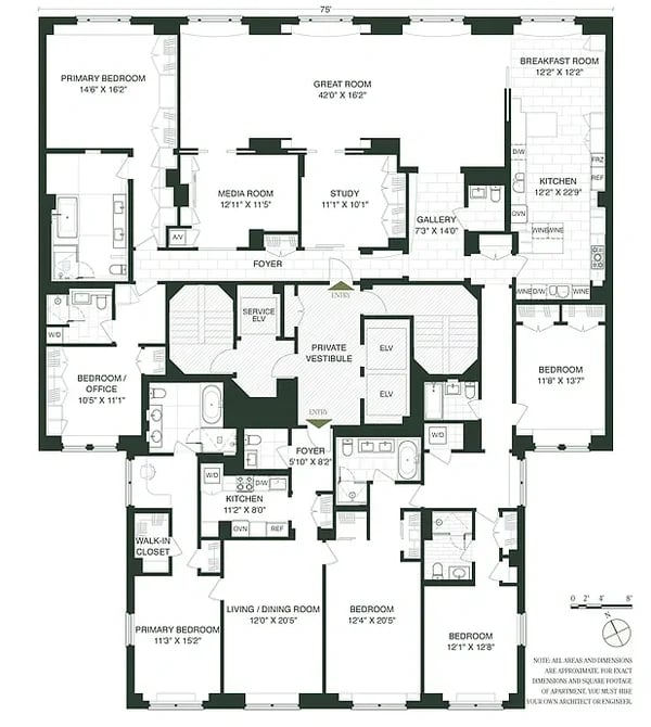
For example, the below listing offers a chance to create a private full-floor residence by seamlessly combining Apartment 12AB and 12C —along with the purchase of an additional 200 SF of hallway space to create a private elevator vestibule.
When the stars align (because of our expert advice and your stellar due diligence), combined apartments can be a truly brilliant way to acquire the NYC home of your dreams.
Visit carlinwright.com for this and other insider insights
