Menu

Leave a Message

Thank you for your message. We will be in touch with you shortly.

Translating the "Classics"

04/21/25

When shopping for a pre-war co-op, you may be presented with a "classic 6 or 7 room apartment", rather than a 2 or 3 bedroom - even though both descriptions are correct. Bewildered? Allow us to translate some New York-specific real estate terminology, and let this be your cheat sheet to these various historical layouts.

 


What is meant by the term Classic?

These pre-war homes were specifically designed for traditional, old-fashioned living and entertaining, and are typically found in uptown doorman elevator buildings. If you are looking for high ceilings in rooms that are scaled considerably larger than you see in newer buildings, with beautiful hardwood floors that may have inlay or special trim, ornate ceiling moldings, solid-core doors, double hung wood frame windows, wood burning fireplaces, and perhaps even a random bonus toilet - a classic may be just the ticket.

While the layouts do vary, here are some typical "classic" floorplans, plus some of the most common ways that our clients have reconfigured them to fit a more modern lifestyle.


Classic 6

Contains 2 bedrooms, 2 bathrooms with single sinks, a grand living room often centered around a fireplace, formal dining room likely with an interior view, small kitchen often with butlers pantry, and a maids room with its own mini bathroom. Below is a very typical and original classic 6 layout.




And here are some 6-room apartments that have been renovated in ways we often see. Red dotted lined indicate existing walls that were removed.

 

 

Floorplan A

Floorplan B (before & after):


 

Floorplan A:

  • The closed galley kitchen that was designed for staff was enlarged by incorporating the small staff quarters into it
  • A formal dining room was so large that it was split in half, and a proper 3rd bedroom was able to be carved out.

 

Floorplan B:

  • A small closed kitchen was opened up into a great room by moving the dining and losing the formal foyer.
  • The original dining is now a full-sized 3rd bed, making this classic 6 into a 4 bedroom which is wonderful for enlarging its future buyer pool and increasing its value.
  • Maids rooms that remain are often used as an office or nursery, and sometimes still for live-in help.

 







 


Classic 7


Similar but with 1 extra bedroom: 3 beds + living + dining + kitchen + maids. Notice in the following example how the kitchen is tucked all the way in the back - this was for staff only. Guests were certainly not intended to be hanging out in this kitchen.

 

 


Edwardian 7

A more unique find which has 2 beds and 2 maids rooms.

 

I sold the below apartment many years ago. The sellers incorporated the 2nd maids room into the kitchen, and opened the wall between living and dining for a dramatic great room.

 

 


8 Room Apartment


2 maids rooms are often found in an 8 room apartment which also has 3 beds, formal living, dining, and kitchen.

 

In the example below, notice how the kitchen is not only tucked away but significantly smaller than even the reception foyer.

 


 

 

Which brings us to....

 


Why Update?


Very commonly, these classic homes were laid out with a living room and library or primary bedrooms enjoying an open view, while the rooms with interior exposures were reserved for dining, which was considered an "evening space" where the view would not be the draw anyway. Today, the kitchen has become the center of the home in modern times with formal living spaces collecting dust. A reconfiguration of these rooms is a great way to maximize square footage for a contemporary lifestyle.

 

A luxurious primary bathroom with two sinks is also a thing of the present - and many original classic layouts have a tiny en suite bathroom, as well as tiny closets - despite what some historical TV wardrobes might indicate. Although I am pretty sure Mrs. Maisel (set in the 50's, but they were very much living in the original 1909 layout) had a whole bedroom dedicated as a dressing room which explains that mystery.

 

Here is her floorplan - a classic 9 at The Strathmore, located at 404 Riverside Drive, which still retains much of its original layout

 


 


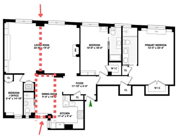
The below layout from 360 Central Park West is a great example of a total reconfiguration. This pre-war building was originally designed by the renowned architect Rosario Candela, and recently converted into condos and beautifully renovated to meet the needs of today’s buyers.

 

Notice the massive primary bath and walk-in closet, a powder room off the entry gallery for guests, and an open-plan living dining kitchen. Due to the building's landmark status, prewar features such as the beautiful multipaned windows remain.

 





Stuck in the Past?


Some classic apartments have structural restrictions like bearing walls, gas risers, or wet-over-dry limitations that simply don't allow much reconfiguration. And some history-lovers might argue that these changes are actually downgrades anyways. But with careful planning many classics can provide the best of both worlds.

 


Do you prefer to keep a classic layout as is? What other re-configurations would you do?

 

Like what you see? Here are a few classics on the market for sale now

 


UPPER WEST SIDE

25 Central Park West, Unit 5N

3 BD 4 BA 2010 SF $4,650,000


A classic 6 in original condition. In a rare pre-war condo!

 



UPPER WEST SIDE


44 West 77th Street, Unit 11W


3 BD 2 BA 2800 SF $7,250,000

 

Originally 9 rooms, partially reconfigured

 



UPPER WEST SIDE


211 Central Park West, Unit 4G


4 BD 4 BA 0 SF $8,500,000

 

A Classic 9 at the Beresford

 


 

UPPER WEST SIDE


490 West End Avenue, Unit 1D


3 BD 3 BA 0 SF $2,950,000

 

Elevated first floor classic 7. Updated, but still has window AC, which sometimes is the only option in these older buildings

Work with Carlin

Call us today to schedule a private showing

Contact