Leave a Message

Thank you for your message. We will be in touch with you shortly.

31 S Elliott Place
31 S Elliott Place
SEE ALL PHOTOS
31 S Elliott Place
31 S Elliott Place
Leased

31 S Elliott Place

31 S Elliott Place, Brooklyn, NY 11217

$16,000/month
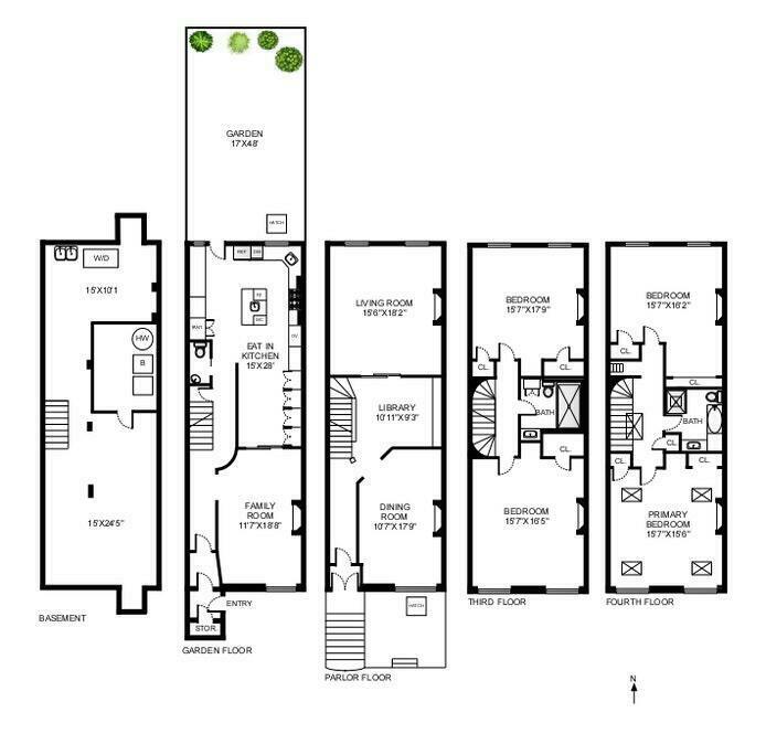
31 S. Elliott Pl. is a beautiful single family brownstone built at the turn of the 20th century with ornate period details throughout. The wonderfully proportioned 3,000+ sq ft home flows over four stories, features many modern updates and is 100% move-in ready. This is Brooklyn brownstone living at its finest, on a leafy block leading to the park, in the heart of the historic Fort Greene neighborhood.

The parlor level boasts soaring ceilings almost 11 feet high and decorative inlaid hardwood floors throughout. The living room opens through a bold arch with original pocket doors and is a gorgeous space for entertaining. The oversized room has an impressive feel with a lavish plaster medallion and chandelier, marble clean burning fireplace, and large windows overlooking the private garden. The formal dining room has another marble fireplace mantel and original plaster medallion, millwork and hand laid flooring. The previous owners created a library with custom display bookcases that separates the dining and living spaces, providing an additional seating and entertaining space.

The center rounded staircase leads up from the formal entry-way to the top two levels of the home. The 3rd and 4th floors have four spacious bedrooms with great closet space, high ceilings and lots of light. The bedrooms each contain a decorative marble fireplace and details such as plaster moldings and the original restored shutters. The full bath on the 3rd floor has a glass enclosed steam shower and Calacatta marble throughout. There is a stand-alone tub as well as a shower in the 4th floor bath which also features marble floors and crisp white tiling. The top floor has multiple skylights letting even more sunlight stream in.

The modern custom chef's kitchen on the garden level of this home is incredibly expansive with generous built-in cabinetry and pantry storage. It is complete with a dining area, an organizing desk station and granite countertops. The thoughtful layout incorporates luxury appliances for an owner who loves to cook: Miele double oven and warming drawer, built-in espresso/coffee maker, Gaggenau 5-burner stove, Subzero fridge and separate freezer and a wine fridge. There is a powder room on this level, as well as another relaxing living room. The space has lovely original hardwood floors, marble mantel and wainscoting panels throughout.

The delightful back garden has been reimagined to include repurposed 100-year blue stone pavers, a spacious premium faux-grass lawn, and a raised patio at the back. The owners also recently added new fencing, outdoor lighting, and professional planting, for greenery and flowers year-round. This outdoor space provides four-season enjoyment, from a BBQ in the summer to building your own snowman in the winter.

This refined and lovingly maintained home blends old world charm and modern conveniences. There is a seven zone A/C system, upgraded electrical and plumbing, and all rear facing windows have been recently replaced. The basement is sealed and clean, and contains a laundry area with double sink and a huge amount of storage including room for a workbench and bikes.

Residents of this vibrant and diverse neighborhood enjoy the many local amenities including Fort Greene Park with its year-round Saturday Greenmarket, tennis courts and music series, and numerous celebrated restaurants and shops. The Barclays Center, Brooklyn Academy of Music, Whole Foods, DeKalb Market, and Trader Joe's are nearby, and every major subway line and the LIRR is on your doorstep.

4
beds

3
baths

3,196 Sq.Ft. LIVING AREA

Features & Amenities

Interior

  • total bedrooms4
  • Total bathrooms3
  • full bathrooms2
  • half bathroom1
  • Laundry room In Unit, See Remarks
  • Flooring Hardwood
  • Fireplace Decorative
  • APPLIANCES Double Oven, Dishwasher
  • other interior Features Breakfast Bar, Crown Molding, Entrance Foyer, High Ceilings, Kitchen Island, Recessed Lighting

Area & Lot

  • Status Leased
  • Living Area3,196 Sq.Ft.
  • Total Area3,196 Sq.Ft.
  • MLS® IDRLS10977739
  • TypeMulti-Family
  • YEAR BUILT1899
  • NeighborhoodFort Greene

Exterior

  • STORIES3
  • AIR CONDITIONINGCentral Air
  • other exterior FeaturesPrivate Entrance, Private Yard

Financial

  • Lease Price$16,000/mo

Fort Greene

40.6921° N, 73.9742° W

Explore
Work With Carlin

Work With Carlin

Carlin Wright is dedicated to helping you find your dream home and assisting with any selling needs you may have. Contact Carlin today to start your home searching journey!